Contact Xavier Gomez
Schedule A Showing
6648 Gaviota Avenue, Lake Balboa, CA 91406
Priced at Only: $1,199,000
For more Information Call
Address: 6648 Gaviota Avenue, Lake Balboa, CA 91406
Property Location and Similar Properties
- MLS#: GD26033482 ( Single Family Residence )
- Street Address: 6648 Gaviota Avenue
- Viewed: 2
- Price: $1,199,000
- Price sqft: $0
- Waterfront: No
- Year Built: 1946
- Bldg sqft: 0
- Days On Market: 47
- Additional Information
- Geolocation: 32.3874 / -93.7107
- County: LOS ANGELES
- City: Lake Balboa
- Zipcode: 91406
- Provided by: Coldwell Banker Hallmark
- Contact: Kevin Kevin

- DMCA Notice
-
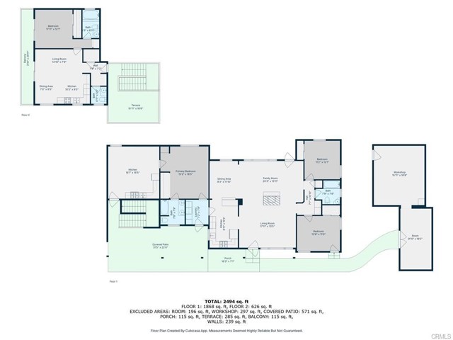
DescriptionA rare Lake Balboa offering featuring a 3 bedroom, 2 bath main residence and a permitted 1 bedroom, 1.5 bath second dwelling unit. With two separate addresses, it provides exceptional flexibility for multi generational living, rental income, or extended family use. Set behind remote controlled electric gates, the property sits far back from the street on a 10,000+ sq ft lot with a long gated driveway, offering privacy and impressive curb appeal. The main residence offers a spacious and functional layout with a living room, family room, dining area, and full kitchen with quartz countertops. Interior updates include recessed lighting, smooth ceilings, and custom tile flooring throughout. A bonus room with a separate entrance adds flexibility and can be easily integrated into the main home. The second unit features a primary bedroom with private bath, guest half bath, large living area, full kitchen with quartz countertops, high ceilings, and access to a balcony and sun deck. The second unit benefits from separate water, gas, and electric meters and has its own address, offering privacy and independence. In addition, the property includes an existing converted area within the main structure that was originally a garage and recreation room. This space is currently improved with a kitchen, living area, bedroom, and bathroom; however, these improvements were completed without permits for their current use. Due to its location within the main residence and existing layout, this area may offer potential to be reconfigured as an ADU, subject to buyer verification, permits, and approval by the City. Major upgrades include full copper plumbing (including the main line from the street), upgraded 200 amp electrical panel and rewiring, newer gas line from the city, newer composition shingle roof, pre wiring for home theater in two rooms, and an 8 camera security surveillance system. Exterior highlights include an oversized RV/boat garage with approximately 11 foot clearance, a large workshop or storage space at the rear of the property with utilities and A/C, and ample gated parking. Conveniently located near Lake Balboa Park, golf course, The Japanese Garden, off leash dog park, FlyAway bus terminal, and with easy access to the 405 and 101 freeways, this is a unique opportunity offering privacy, flexibility, and exceptional utility in a desirable Valley location. Read photo descriptions.
Features
Appliances
- Gas Range
- Dishwasher
Assessments
- None
Association Fee
- 0.00
Building Area Total
- 2659.00
Commoninterest
- None
Common Walls
- No Common Walls
Cooling
- Central Air
Country
- US
Days On Market
- 32
Electric Expense
- 0.00
Entry Location
- Ground level
Fencing
- Chain Link
- Redwood
Fireplace Features
- Family Room
Flooring
- Tile
- Carpet
Fuel Expense
- 0.00
Garage Spaces
- 2.00
Heating
- Central
Insurance Expense
- 0.00
Interior Features
- Balcony
- Quartz Counters
- Ceiling Fan(s)
- Recessed Lighting
- Storage
- Copper Plumbing Full
- In-Law Floorplan
- Cathedral Ceiling(s)
- Granite Counters
Laundry Features
- Individual Room
Levels
- Two
Lockboxtype
- Supra
- See Remarks
Lot Features
- Rectangular Lot
- Lot 10000-19999 Sqft
- Flag Lot
- Yard
Netoperatingincome
- 0.00
Parcel Number
- 2233018046
Parking Features
- Garage
- Gated
- Driveway - Combination
- Carport
- Garage - Single Door
- Garage Door Opener
- See Remarks
Pool Features
- None
Property Type
- Single Family Residence
Road Surface Type
- Paved
Sewer
- Public Sewer
Sourcesystemid
- CRM
Sourcesystemkey
- 456626578:CRM
Totalexpenses
- 0.00
Trash Expense
- 0.00
View
- Trees/Woods
- Neighborhood
- See Remarks
Water Sewer Expense
- 0.00
Water Source
- Public
Window Features
- Double Pane Windows
- Blinds
Year Built
- 1946
Year Built Source
- Assessor
- Xavier Gomez, BrkrAssc,CDPE
- RE/MAX College Park Realty
- BRE 01736488
- Fax: 714.975.9953
- Mobile: 714.478.6676
- salesbyxavier@gmail.com


























































