Contact Xavier Gomez
Schedule A Showing
449 River Rd, Corona, CA 92878
Priced at Only: $1,400,000
For more Information Call
Address: 449 River Rd, Corona, CA 92878
Property Location and Similar Properties
- MLS#: IV26038747 ( Mixed Use )
- Street Address: 449 River Rd
- Viewed: 2
- Price: $1,400,000
- Price sqft: $0
- Waterfront: No
- Year Built: Not Available
- Bldg sqft: 0
- Days On Market: 7
- Additional Information
- County: RIVERSIDE
- City: Corona
- Zipcode: 92878
- Provided by: SIMPLE REAL ESTATE GROUP
- Contact: MCKENSIE MCKENSIE

- DMCA Notice
-
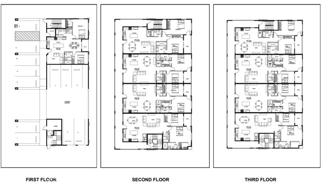
DescriptionShovel ready 9 unit condominium development opportunity in the River Road corridor of Corona. This 0.42 acre (18,295 SF) level, infill corner parcel at River Rd & Cota St offers strong visibility, excellent site identity, and practical circulation planning. All plans are fully approved including construction, civil, architectural, and required permits allowing a Buyer/Investor to begin construction immediately. The approved project consists of nine (9) condominium units ranging from approximately 1,1201,312 SF, totaling 15,170 SF across three stories, with 20 parking spaces (see approved plans). Strategically located within a short walk to major shopping and numerous dining options, and just minutes from the 91 and 15 freeways, providing regional connectivity to Orange County, Riverside, the Inland Empire, and San Diego. The property is also near recreation amenities including access to the Santa Ana River Trail. Multiple exit strategies available: build to sell (retail condo sellout), build to hold for income generation, or a hybrid partial sellout/partial hold model. Seller is open to assisting with construction following land sale with approved plans in place. An exceptional opportunity to step into a fully entitled project in a high demand Southern California market.
Features
Building Area Total
- 18731.00
Commoninterest
- None
Country
- US
Current Use
- Unimproved
Land Use
- Other
Laundry Features
- None
Parcel Number
- 119081012
Property Type
- Mixed Use
Water Source
- Public
- Xavier Gomez, BrkrAssc,CDPE
- RE/MAX College Park Realty
- BRE 01736488
- Fax: 714.975.9953
- Mobile: 714.478.6676
- salesbyxavier@gmail.com








