Contact Xavier Gomez
Schedule A Showing
4201 Lakeshore Ave, Oakland, CA 94610
Priced at Only: $1,995,000
For more Information Call
Address: 4201 Lakeshore Ave, Oakland, CA 94610
Property Location and Similar Properties
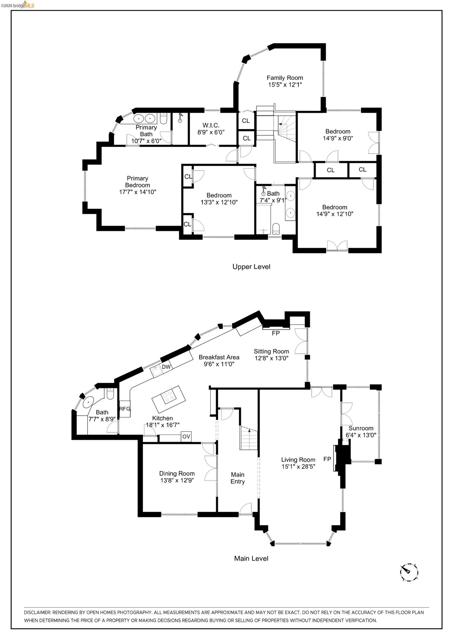
- MLS#: 41127716 ( Single Family Residence )
- Street Address: 4201 Lakeshore Ave
- Viewed: 1
- Price: $1,995,000
- Price sqft: $693
- Waterfront: Yes
- Wateraccess: Yes
- Year Built: 1953
- Bldg sqft: 2880
- Bedrooms: 4
- Total Baths: 3
- Full Baths: 2
- 1/2 Baths: 1
- Garage / Parking Spaces: 2
- Days On Market: 1
- Additional Information
- County: ALAMEDA
- City: Oakland
- Zipcode: 94610
- Subdivision: Crocker Hghlands
- District: Oakland
- Provided by: Compass
- Contact: Rosie Rosie

- DMCA Notice
-
DescriptionSet on a rare, level corner lot, this gracious home blends space, light, and comfort in all the right ways. A welcoming foyer and classic staircase set the tone, with expansive formal living and dining rooms, a sunlit garden room overlooking wisteria vines and gardens, and an easy connection from the kitchen to the family room to outdoors. Upstairs offers four bedrooms and a flexible loftideal for work or quiet retreat. Outside, a spacious deck steps down into lush gardens that meander around to the front where fragrant blossoms and a majestic pine tree anchors the setting. The property straddles both Oakland and Piedmont with two APNs this home offers a unique added advantage.
Features
Appliances
- Gas Water Heater
Architectural Style
- Traditional
Construction Materials
- Stucco
Cooling
- None
Eating Area
- Breakfast Nook
Fireplace Features
- Living Room
Flooring
- Wood
Garage Spaces
- 1.00
Heating
- Forced Air
Laundry Features
- Washer Included
- Dryer Included
Levels
- Two
Lockboxtype
- Supra
Lot Features
- Corner Lot
- Level with Street
- Front Yard
Parcel Number
- 11863103
Parking Features
- Garage
- Garage Door Opener
Patio And Porch Features
- Deck
Pool Features
- None
Property Type
- Single Family Residence
Roof
- Shingle
School District
- Oakland
Sewer
- Public Sewer
Subdivision Name Other
- CROCKER HGHLANDS
Virtual Tour Url
- https://my.matterport.com/show/?m=K2s263rJ7th&mls=1
Year Built
- 1953
- Xavier Gomez, BrkrAssc,CDPE
- RE/MAX College Park Realty
- BRE 01736488
- Fax: 714.975.9953
- Mobile: 714.478.6676
- salesbyxavier@gmail.com




























































